Dzenis
- 25,000 € zzgl. MwSt.
Überblick
- 1
- 1
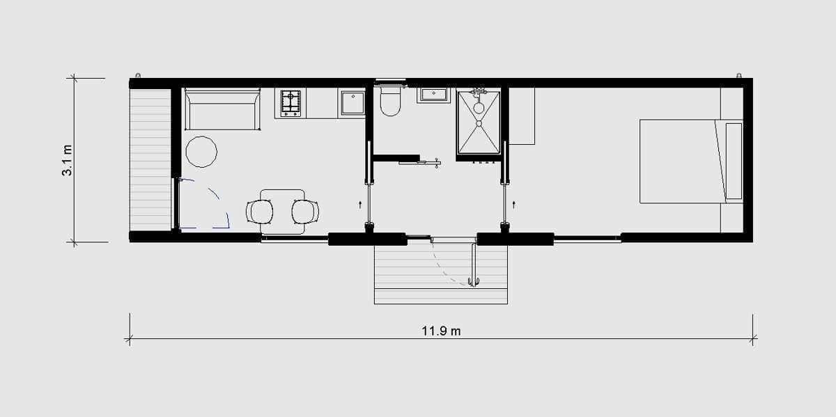
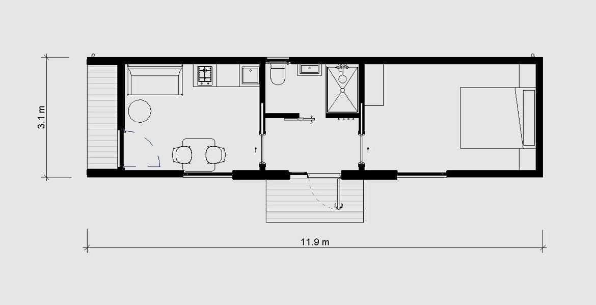
- 29 m²
Übersicht
Dzenis ist ein modulares Haus, das von CMB Housing Solutions, einem Hersteller von Fertighäusern mit Sitz in Lettland, gebaut wurde. Dieses Modulhaus bietet 29 m² Wohnfläche mit einem Schlafzimmer und einem Badezimmer.
Available for delivery in:
-
Land: Belgien, Bulgaria, Dänemark, Deutschland, Estland, Finnland, Frankreich, Griechenland, Irland, Island, Italien, Kroatien, Lettland, Litauen, Luxemburg, Niederlande, Norwegen, Österreich, Polen, Portugal, Rumänien, Schweden, Schweiz, Slowenien, Spanien, Ungarn, Vereinigtes Königreich, Vereinigtes Königreich, Zypern, Vereinigte Staaten von Amerika
Anfrage an den Hersteller senden
UnternehmensprofilÄhnliche Modelle
The images may be generated using virtual modeling. Actual pricing may differ from the representations shown.
- CMB Housing Solutions






