Sardegna T.S.
  • Von 20,400 € zzgl. MwSt.

Überblick

  • 3+
  • Schlafzimmer
  • 1+
  • Badezimmer
  • 128 m²
  • Area Size

Übersicht

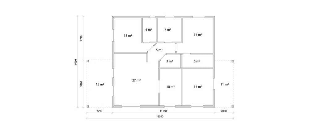
Sardegna T.S. ist ein Fertighaus, das von der SIA Frame House Group, einem Hersteller von Fertighäusern mit Sitz in Lettland, gebaut wurde. Dieses Fertighaus bietet 128 m² Wohnfläche mit 3 Schlafzimmern und 1 Badezimmer. Der Grundriss kann bei Bedarf um weitere Schlafzimmer und/oder Bäder erweitert werden.

Available for delivery in:

  • Land: Belgien, Bulgaria, Dänemark, Deutschland, Estland, Finnland, Frankreich, Griechenland, Irland, Island, Italien, Kroatien, Lettland, Litauen, Luxemburg, Niederlande, Norwegen, Österreich, Polen, Portugal, Rumänien, Schweden, Schweiz, Slowenien, Spanien, Ungarn, Vereinigtes Königreich, Zypern, Vereinigte Staaten von Amerika

Anfrage an den Hersteller senden

Unternehmensprofil
SIA Frame House Group
  • SIA Frame House Group

Für mehr Informationen, füllen Sie das Formular unten aus

Ähnliche Modelle

The images may be generated using virtual modeling. Actual pricing may differ from the representations shown.

Inserate vergleichen

Vergleichen Sie