Elise
- Von 34,060 € zzgl. MwSt.
Überblick
- 6
- 1
- 25 m²
Übersicht
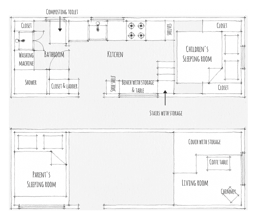
Elise ist ein Tiny House, das von Vagabond Haven, einem Hersteller mit Sitz in Schweden, verkauft wird. Dieses winzige Haus bietet 25 m² Wohnfläche und kann bis zu vier Personen beherbergen.
Video
Available for delivery in:
-
Land: Belgien, Bulgaria, Dänemark, Deutschland, Estland, Finnland, Frankreich, Griechenland, Irland, Island, Italien, Kroatien, Lettland, Litauen, Luxemburg, Niederlande, Norwegen, Österreich, Polen, Portugal, Rumänien, Schweden, Schweiz, Slowenien, Spanien, Ungarn, Vereinigtes Königreich, Zypern
Besuch des Probewohnens
Anfrage an den Hersteller senden
Unternehmensprofil- Vagabond Haven
- +4618258899
Für mehr Informationen, füllen Sie das Formular unten aus
Ähnliche Modelle
The images may be generated using virtual modeling. Actual pricing may differ from the representations shown.
- Vagabond Haven







