Características

  • 2
  • Plazas
  • 1
  • Baños
  • 30 m²
  • Area Size

Resumen

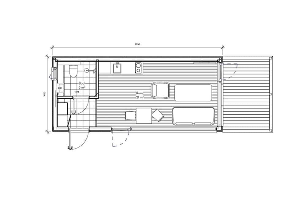
Gullunge B-30 es una cabaña modular construida por Skandlink, un fabricante de prefabricados con sede en Letonia. Esta cabaña modular ofrece 30 m² de espacio habitable para dos personas.

Available for delivery in:

  • País: Dinamarca, Finlandia, Noruega, Suecia

Contactar con el fabricante

Ver fabricante
Skandlink
  • Skandlink

Para más información, contactar con el fabricante completando el formulario

Modelos similares

The images may be generated using virtual modeling. Actual pricing may differ from the representations shown.

Comparar listados

Compara