Riket B-30
- POA
Características
- 1
- 1
- 30 m²
Resumen
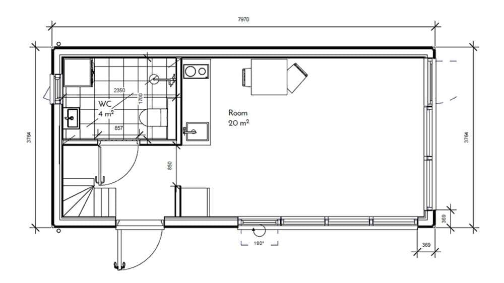
Riket B-30 es una cabina modular construida por Skandlink, un Fabricante de Prefabricados con sede en Letonia. Esta Cabina modular ofrece 30 m² de espacio habitable con un dormitorio y un cuarto de baño.
Opciones incluidas en el precio
Available for delivery in:
-
País: Dinamarca, Finlandia, Noruega, Suecia
Visita la casa piloto
Contactar con el fabricante
Ver fabricanteModelos similares
The images may be generated using virtual modeling. Actual pricing may differ from the representations shown.
- Skandlink
