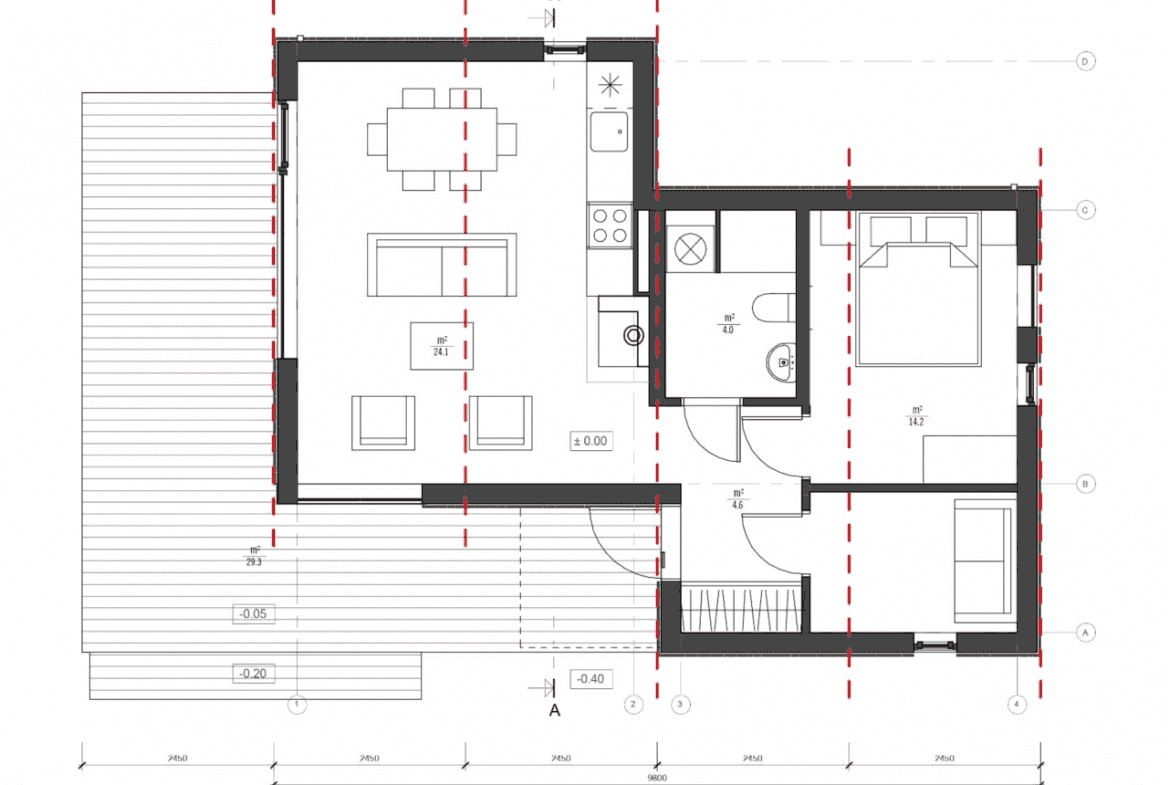
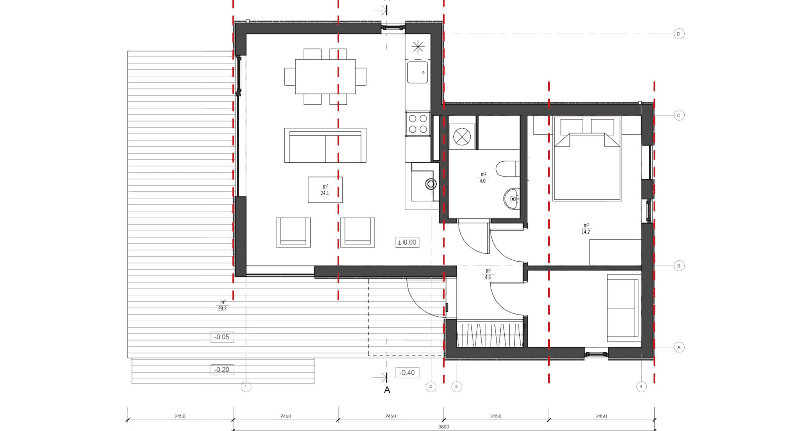
Medium House es una casa modular construida por Tesla Smart Home, un fabricante de prefabricados con sede en Letonia. Esta casa modular ofrece 47 m² de espacio habitable con dos dormitorios y un baño.
El interior consta de 1 ó 2 dormitorios, cuarto de baño de 3 piezas y amplia zona de estar combinada con cocina. El diseño interior combinado de cocina y salón crea un espacio abierto con un entorno más cómodo para la actividad diaria. La propiedad ofrece además armarios empotrados en los dormitorios, ventanas de triple acristalamiento uPvc y una zona de terraza delantera de madera que crea un hermoso puente natural hacia el exterior.
Superficie total – 58,8 m2
Superficie habitable – 47 m2
Terraza – 29,3 m2
Recuperación del aire
Intercambiador de calor de contracorriente con dos flujos de aire, separados entre sí, que permiten que el aire circule en cada dirección. El flujo caliente transmite calor al flujo frío, y viceversa, a través del módulo celular especial. Los sensores controlarán el nivel de CO2, la humedad y la temperatura, ajustando la velocidad del ventilador. Gracias al avanzado sistema de recuperación, ahorrarás hasta un 92% del calor de tu vivienda.
Control de la calefacción
La Calefacción se ajusta a las necesidades de cada proyecto, para esta casa elegimos una Bomba de Calor. Ha demostrado ser muy eficaz en las zonas de clima templado y proporciona suficiente calor para cualquier ocasión. Puedes controlar la calefacción a distancia mediante smartphone o tablet o con el termostato integrado, establecer los parámetros destacados que se regirán por horario, temperatura, hora del día y mucho más.
Casa inteligente equipada
Sistema de seguridad
Videovigilancia exterior a través de tu smartphone: recibe notificaciones sobre presencia no autorizada, graba secuencias, comunícate con tus visitantes a distancia mediante un dispositivo de voz integrado.
Persianas controladas
Para aumentar tu confort, hay persianas enrollables o persianas de persiana, que puedes controlar con tu smartphone o con un mando a distancia. Es posible configurar las escenas inteligentes en función del día, el horario, las condiciones de iluminación y mucho más.
Control de acceso
Accede a tu casa mediante smartphone, llavero, tarjeta inteligente, teclado, comprueba a distancia el estado de tu puerta, emite códigos de usuario para tus invitados y mucho más.
Control de la iluminación
Luces LED, control total de la iluminación y posibilidades de automatización, control remoto y local, control por voz opcional, atenuación, escenas inteligentes y mucho más.
Control de potencia
Control remoto de los dispositivos alimentados, función Master Off, monitor de consumo de energía.
Seguridad contra incendios
Recibe una notificación en tu teléfono cuando se active la alarma de humos, también sonará una sirena.
Control de inundaciones
Corte remoto del suministro de agua, notificación en tu teléfono cuando se activa el sensor de inundación.
Control de la temperatura
Posibilidades completas de automatización de la temperatura, según la hora, el horario, la presencia y más.