Características

  • 3
  • Habitaciones
  • 2
  • Baños
  • 310 m²
  • Area Size

Resumen

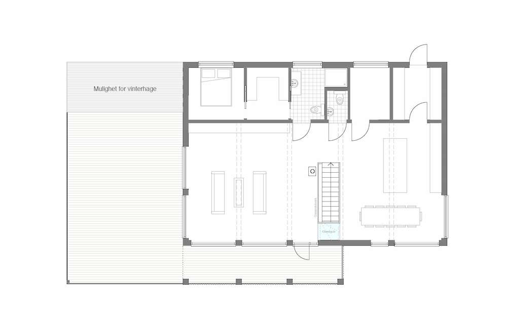
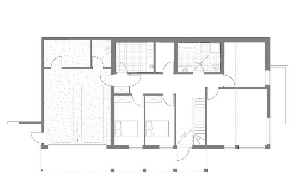
INNO 300 es una Casa montada in-situ por UAB Inno Lietuva, Fabricante de prefabricados con sede en Lituania. Casa montada in-situ de 310 m² distribuidos en dos plantas, con tres dormitorios y dos baños.

Available for delivery in:

  • País: Alemania, Austria, Bélgica, Bulgaria, Chipre, Croacia, Dinamarca, Eslovenia, España, Estonia, Finlandia, Francia, Grecia, Hungría, Irlanda, Islandia, Italia, Letonia, Lituania, Luxemburgo, Noruega, Países Bajos, Polonia, Portugal, Reino Unido, Reino Unido, Rumanía, Suecia, Suiza, Estados Unidos de América

Contactar con el fabricante

Ver fabricante
UAB Inno Lietuva
  • UAB Inno Lietuva

Para más información, contactar con el fabricante completando el formulario

Modelos similares

The images may be generated using virtual modeling. Actual pricing may differ from the representations shown.

Comparar listados

Compara