Overview

  • 2
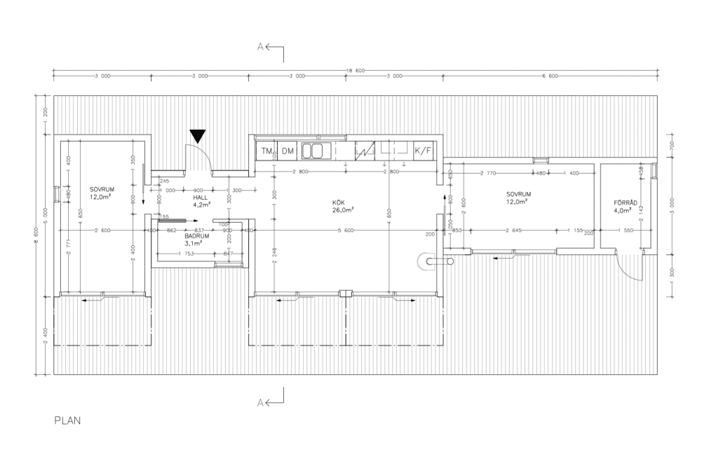
  • Bedrooms
  • 1
  • Bathroom
  • 75 m²
  • Area Size

Summary

The Larger Holiday Home is a modular house built by Add A Room A/S, a prefab manufacturer based in Denmark. This modular house provides 75 m2 of living space with two bedrooms and one bathroom.

Available for delivery in:

  • Country: Austria, Belgium, Bulgaria, Croatia, Cyprus, Denmark, Estonia, Finland, France, Germany, Greece, Hungary, Iceland, Ireland, Italy, Latvia, Lithuania, Luxembourg, Netherlands, Norway, Poland, Portugal, Romania, Slovenia, Spain, Sweden, Switzerland, United Kingdom, United States of America

Contact the manufacturer

View profile
Add a Room A/S
  • Add a Room A/S

For more information, please contact the manufacturer by completing the form below.

Similar models

The images may be generated using virtual modeling. Actual pricing may differ from the representations shown.

Compare listings

Compare