Tinyhouse 17
Overview
- 4
- 1
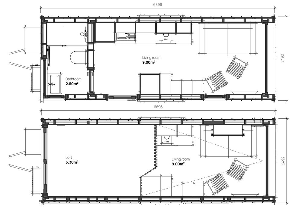
- 22.3 m²
Summary
Tiny House 17 is a tiny house on wheels built by Aiger House, a prefab manufacturer based in Poland.
This prefab house provides 17 m² + 5.3 m² loft of living space which can accommodate 4 people.
Documentation
TinyHouse 17 Max - Information - Aiger House_compressed
360° Virtual viewing
Video
Features included in the price
Available for delivery in:
-
Country: Austria, Belgium, Bulgaria, Croatia, Cyprus, Denmark, Estonia, Finland, France, Germany, Greece, Hungary, Iceland, Ireland, Italy, Latvia, Lithuania, Luxembourg, Netherlands, Norway, Poland, Portugal, Romania, Slovenia, Spain, Sweden, Switzerland, United Kingdom, United States of America
Visit the show-home
Contact the manufacturer
View profileSimilar models
The images may be generated using virtual modeling. Actual pricing may differ from the representations shown.
- Aiger House









