Kilvo
- POA
Overview
- 4
- 156 m²
Summary
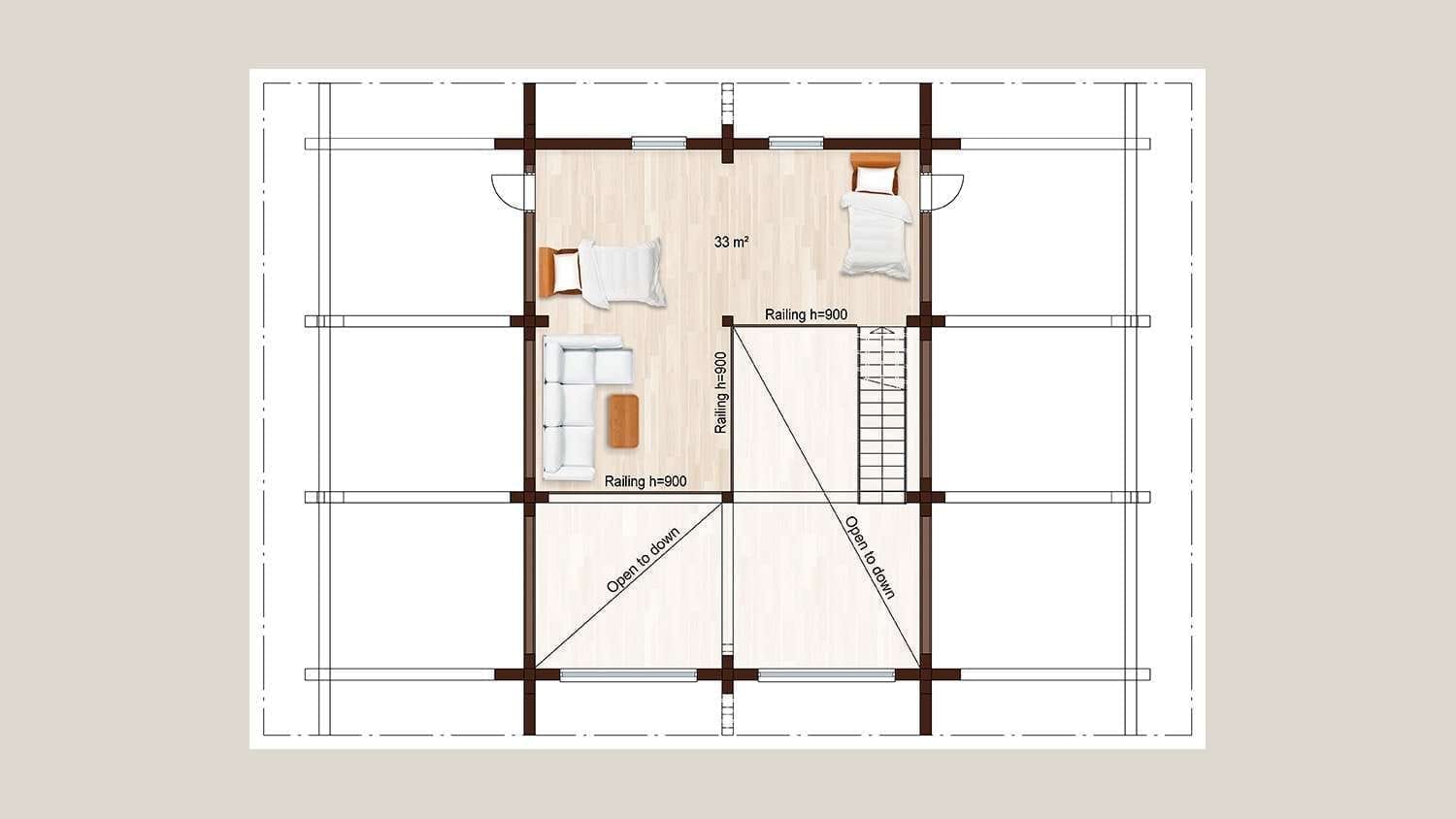
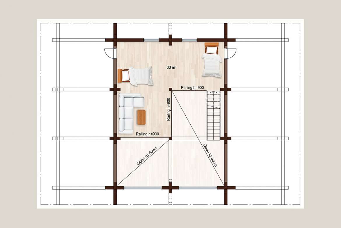
Kilvo is a log house built by Aito Lapland, a house manufacturer based in Finland. This log house has four bedrooms and provides 156 m² of living space over two floors.
Available for delivery in:
-
Country: Austria, Belgium, Bulgaria, Croatia, Cyprus, Denmark, Estonia, Finland, France, Germany, Greece, Hungary, Iceland, Ireland, Italy, Latvia, Lithuania, Luxembourg, Netherlands, Norway, Poland, Portugal, Romania, Slovenia, Spain, Sweden, Switzerland, United Kingdom, United States of America
Contact the manufacturer
View profileSimilar models
The images may be generated using virtual modeling. Actual pricing may differ from the representations shown.
- Aito Lapland


