Overview

  • 1
  • Bathroom
  • 28 m²
  • Area Size

Summary

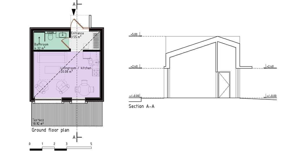
BOX1 is a cabin built by Liskandas, a prefab manufacturer based in Lithuania. This cabin provides 28 m² of living space which can accommodate two people.

Available for delivery in:

  • Country: Austria, Belgium, Bulgaria, Croatia, Cyprus, Denmark, Estonia, Finland, France, Germany, Greece, Hungary, Iceland, Ireland, Italy, Latvia, Lithuania, Luxembourg, Netherlands, Norway, Poland, Portugal, Romania, Slovenia, Spain, Sweden, Switzerland, United Kingdom

Contact the manufacturer

View profile
Liskandas
  • Liskandas

For more information, please contact the manufacturer by completing the form below.

Similar models

The images may be generated using virtual modeling. Actual pricing may differ from the representations shown.

Compare listings

Compare