Overview

  • 3
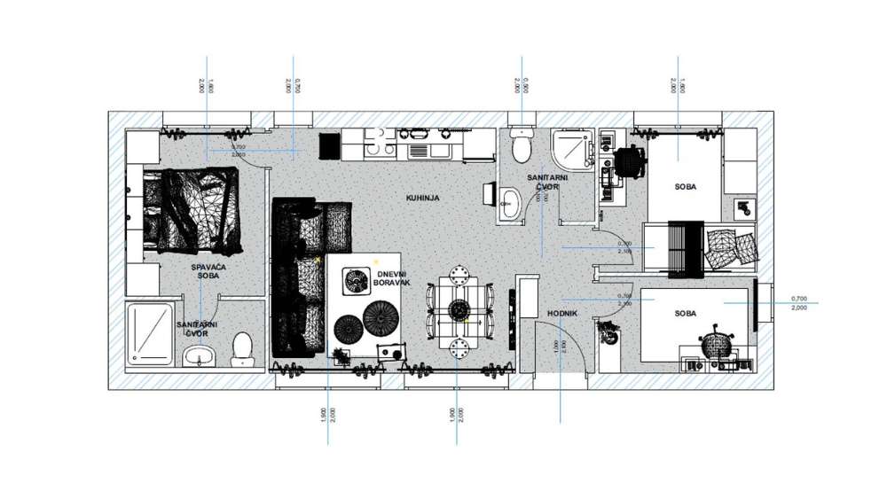
  • Bedrooms
  • 2
  • Bathrooms
  • 60 m²
  • Area Size

Summary

Marida M-60 is a modular house built by Modular Homes Factory, a prefab manufacturer based in Croatia. This modular house provides 60 m² of living space with three bedrooms and two bathrooms.

Documentation

Marida-60-technical-data

360° Virtual viewing

Video

Available for delivery in:

  • Country: Austria, Belgium, Bulgaria, Croatia, Cyprus, Denmark, Estonia, Finland, France, Germany, Greece, Hungary, Iceland, Ireland, Italy, Latvia, Lithuania, Luxembourg, Netherlands, Norway, Poland, Portugal, Romania, Slovenia, Spain, Sweden, Switzerland, United Kingdom

Contact the manufacturer

View profile
Modular Homes Factory
  • Modular Homes Factory

For more information, please contact the manufacturer by completing the form below.

Similar models

The images may be generated using virtual modeling. Actual pricing may differ from the representations shown.

Compare listings

Compare