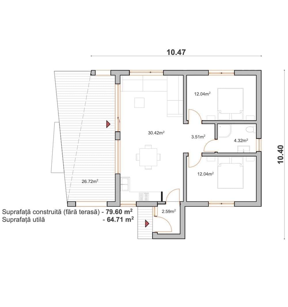
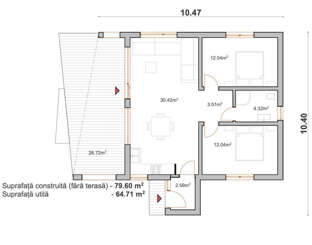
Modulo 79
- From 70,819 € +VAT
Overview
- 2
- 1
- 79 m²
Summary
Modulo 79 is a prefab house built by Modulo House, a prefab manufacturer based in Romania. This house provides 79 m² of living space, with 2 bedrooms and 1 bathroom.
Available for delivery in:
-
Country: Austria, Belgium, Bulgaria, Croatia, Cyprus, Denmark, Estonia, Finland, France, Germany, Greece, Hungary, Iceland, Ireland, Italy, Latvia, Lithuania, Luxembourg, Netherlands, Norway, Poland, Portugal, Romania, Slovenia, Spain, Sweden, Switzerland, United Kingdom
Contact the manufacturer
View profile- Modulo House
- +40768501028WhatsApp
For more information, please contact the manufacturer by completing the form below.
Similar models
The images may be generated using virtual modeling. Actual pricing may differ from the representations shown.

