Selena
Overview
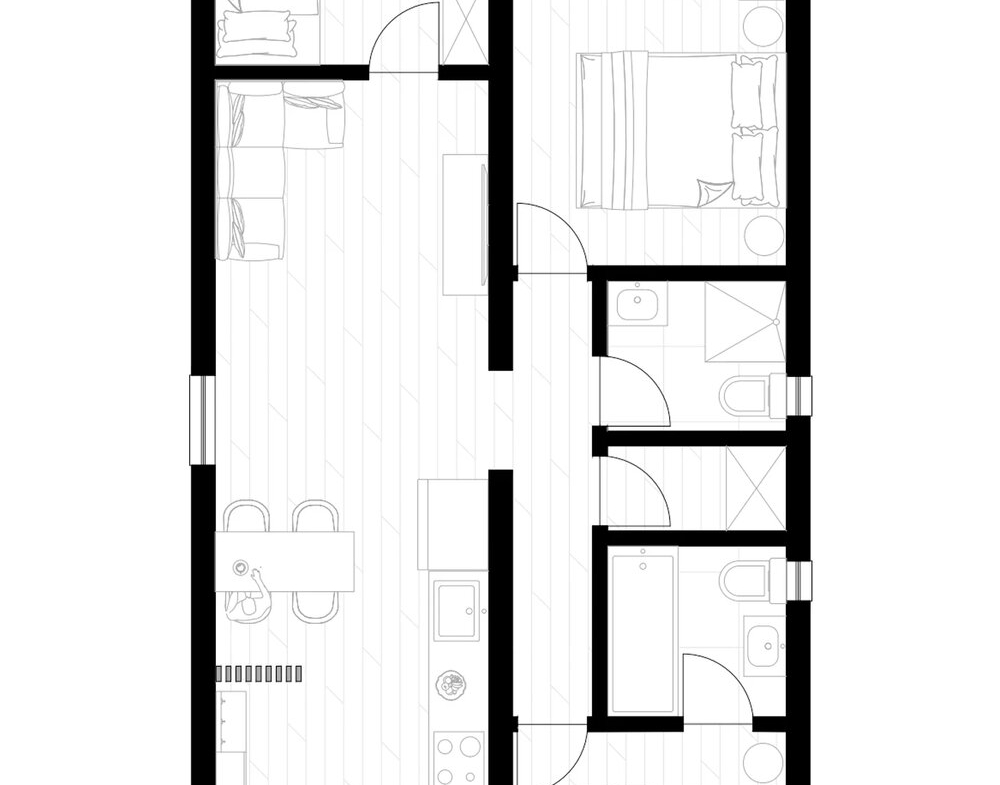
- 3
- 2
- 65.2 m²
Summary
Selena is a modular prefab built by Palladium Corporation, a prefab manufacturer based in Romania.
This prefab house provides 65.2 m² of living space, with 3 bedrooms and 2 bathrooms.
Features included in the price
Available for delivery in:
-
Country: Austria, Belgium, Bulgaria, Croatia, Cyprus, Denmark, Estonia, Finland, France, Germany, Greece, Hungary, Iceland, Ireland, Italy, Latvia, Lithuania, Luxembourg, Netherlands, Norway, Poland, Portugal, Romania, Slovenia, Spain, Sweden, Switzerland, United Kingdom
Contact the manufacturer
View profile- Palladium Corporation
- 0040757246958
For more information, please contact the manufacturer by completing the form below.
Similar models
The images may be generated using virtual modeling. Actual pricing may differ from the representations shown.
- Palladium Corporation
