Modul 63 m²
Overview
- 2
- 1
- 63 m²
Summary
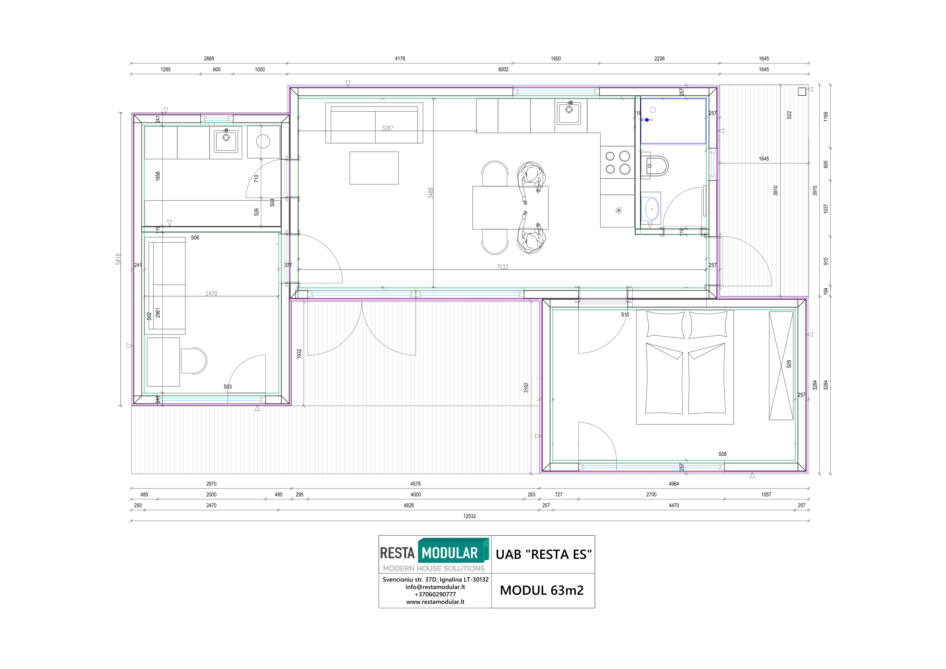
Modul 63 m² is a modular house built by Resta ES, a prefab manufacturer based in Lithuania. This modular house provides 63 m² of living space with two bedrooms and one bathroom.
Available for delivery in:
-
Country: Austria, Belgium, Bulgaria, Croatia, Cyprus, Denmark, Estonia, Finland, France, Germany, Greece, Hungary, Iceland, Ireland, Italy, Latvia, Lithuania, Luxembourg, Netherlands, Norway, Poland, Portugal, Romania, Slovenia, Spain, Sweden, Switzerland, United Kingdom, United States of America
Contact the manufacturer
View profileSimilar models
The images may be generated using virtual modeling. Actual pricing may differ from the representations shown.
- Resta ES


























