Sofia
- From 27,990 € + VAT
Overview
- 2
- 1
- 16 m²
Summary
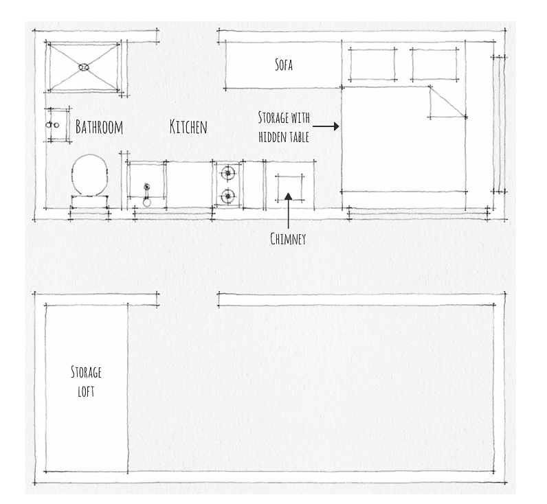
Sofia is a tiny house sold by Vagabond Haven, a manufacturer based in Sweden. This tiny house provides 16 m² of living space which can accommodate two people.
Video
Available for delivery in:
-
Country: Austria, Belgium, Bulgaria, Croatia, Cyprus, Denmark, Estonia, Finland, France, Germany, Greece, Hungary, Iceland, Ireland, Italy, Latvia, Lithuania, Luxembourg, Netherlands, Norway, Poland, Portugal, Romania, Slovenia, Spain, Sweden, Switzerland, United Kingdom
Visit the show-home
Contact the manufacturer
View profile- Vagabond Haven
- +4618258899
For more information, please contact the manufacturer by completing the form below.
Similar models
The images may be generated using virtual modeling. Actual pricing may differ from the representations shown.
- Vagabond Haven








