VITA-83
- 108,800 €
Overview
- 3
- 2
- 102 m²
Summary
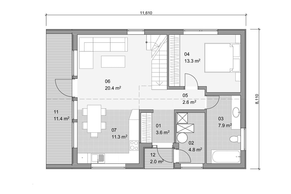
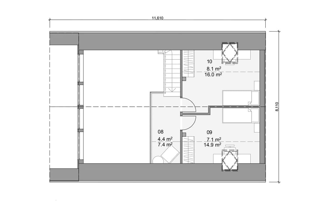
VIT-83 is a prefabricated wooden frame house built by Vitbuve, a prefab manufacturer based in Latvia. This prefab house provides 83.5 m2 of living space, with 3 bedrooms and 2 bathrooms.
Documentation
VITBUVE.COM-PriceEstimation-25.04.01.-VITA83
Video
Available for delivery in:
-
Country: Austria, Belgium, Bulgaria, Croatia, Cyprus, Denmark, Estonia, Finland, France, Germany, Greece, Hungary, Iceland, Ireland, Italy, Latvia, Lithuania, Luxembourg, Netherlands, Norway, Poland, Portugal, Romania, Slovenia, Spain, Sweden, Switzerland, United Kingdom
Contact the manufacturer
View profileSimilar models
The images may be generated using virtual modeling. Actual pricing may differ from the representations shown.
- Vitbuve







