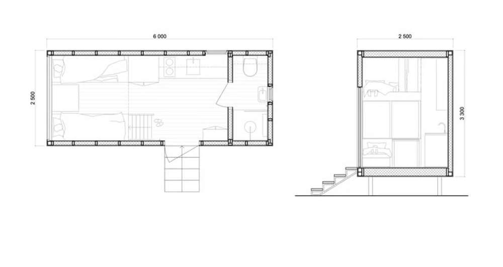
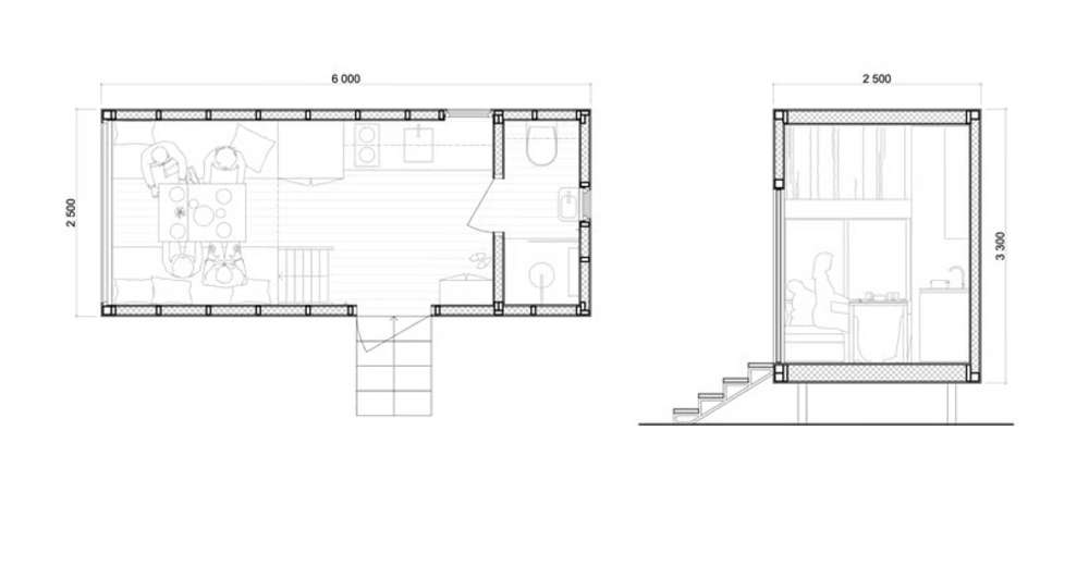
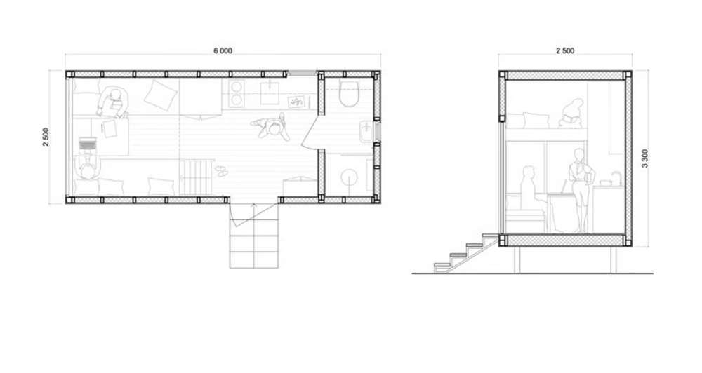
Model S
- 42,000 € + BTW
Kenmerken
- 4
- 1
- 15 m²
Samenvatting
Model S is een tiny house gebouwd door I Love Tiny, een fabrikant gevestigd in Nederland. Dit tiny house biedt 15 m² woonruimte en is geschikt voor 4 personen.
Video
Inbegrepen functies in de prijs
Available for delivery in:
-
Land: België, Bulgaria, Cyprus, Denemarken, Duitsland, Estland, Finland, Frankrijk, Griekenland, Hongarije, Ierland, Italië, Kroatië, Letland, Litouwen, Luxemburg, Nederland, Oostenrijk, Polen, Portugal, Roemenië, Slovenië, Spanje, Zweden
Neem contact op met de fabrikant
Fabrikant bekijkenLignende modeller
The images may be generated using virtual modeling. Actual pricing may differ from the representations shown.
- I Love Tiny

