Kenmerken

  • 3
  • Slaapkamers
  • 2
  • Badkamers
  • 128.1 m²
  • Area Size

Samenvatting

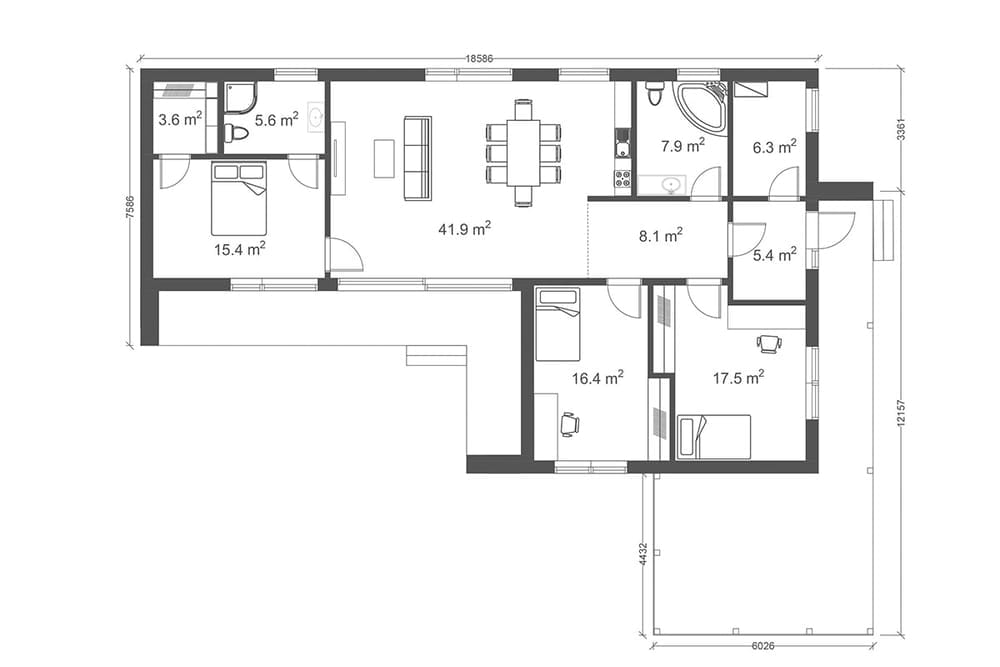
X-128 is een geprefabriceerd houten huis gebouwd door Vitbuve, een prefab Fabrikant gevestigd in Letland. Dit prefab huis biedt 128,1 m2 woonruimte, met 3 slaapkamers en 2 badkamers.

Available for delivery in:

  • Land: BelgiĆ«, Bulgaria, Cyprus, Denemarken, Duitsland, Estland, Finland, Frankrijk, Griekenland, Hongarije, Ierland, IJsland, ItaliĆ«, KroatiĆ«, Letland, Litouwen, Luxemburg, Nederland, Noorwegen, Oostenrijk, Polen, Portugal, RoemeniĆ«, SloveniĆ«, Spanje, Verenigd Koninkrijk, Zweden, Zwitserland

Neem contact op met de fabrikant

Fabrikant bekijken
Vitbuve
  • Vitbuve

Voor meer informatie, vul het onderstaande formulier in en neem contact op met de fabrikant.

Lignende modeller

The images may be generated using virtual modeling. Actual pricing may differ from the representations shown.

Vergelijk lijsten

Vergelijk