Kenmerken

  • 3
  • Slaapkamers
  • 1
  • Badkamer
  • 133 m²
  • Area Size

Samenvatting

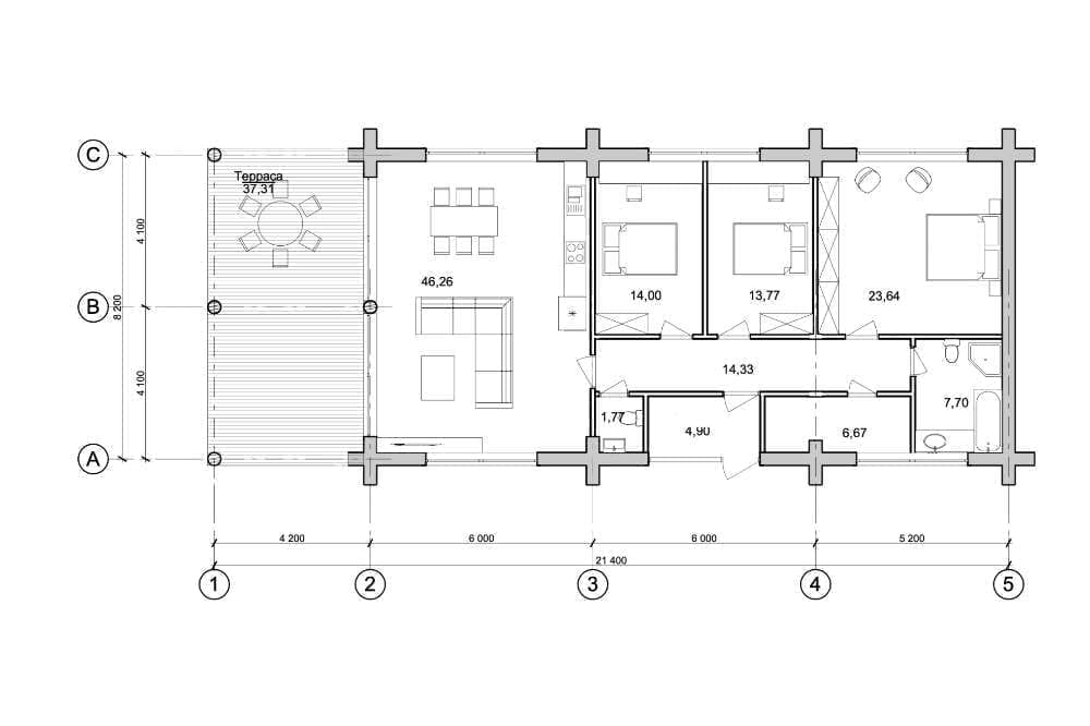
Sokoladine Riese is een houten woning gebouwd door Zaskov-Grup, een prefab Fabrikant uit Litouwen. Deze blokhut biedt 133 m² woonruimte met drie slaapkamers en een badkamer.

Available for delivery in:

  • Land: België, Bulgaria, Cyprus, Denemarken, Duitsland, Estland, Finland, Frankrijk, Griekenland, Hongarije, Ierland, IJsland, Italië, Kroatië, Letland, Litouwen, Luxemburg, Nederland, Noorwegen, Oostenrijk, Polen, Portugal, Roemenië, Slovenië, Spanje, Verenigd Koninkrijk, Zweden, Zwitserland, Verenigde Staten van Amerika

Neem contact op met de fabrikant

Fabrikant bekijken
UAB Zaskov-Grup
  • UAB Zaskov-Grup

Voor meer informatie, vul het onderstaande formulier in en neem contact op met de fabrikant.

Lignende modeller

The images may be generated using virtual modeling. Actual pricing may differ from the representations shown.

Vergelijk lijsten

Vergelijk