Oversikt

  • 1
  • Soverom
  • 1
  • Bad
  • 35.6 m²
  • Area Size

Sammendrag

Averon 30 Loft er et modulhus bygget av Aiger House, en prefab-produsent med base i Polen.
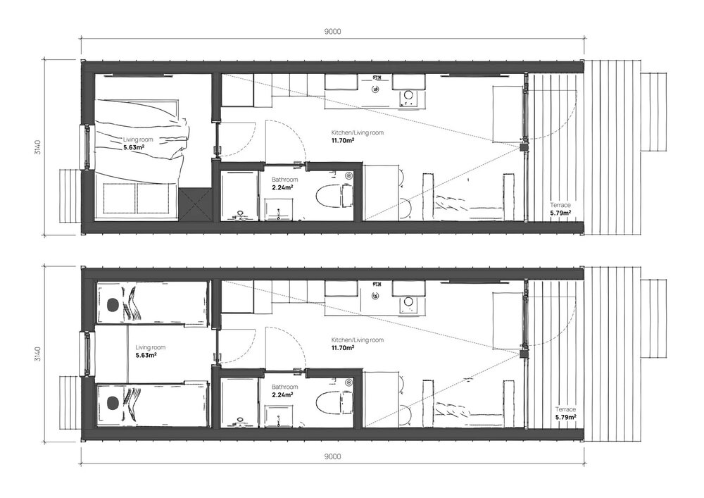
Dette prefab-huset har et boareal på 30 m² + 5,6 m² hems, med 1 soverom, 1 bad og et soveområde på hemsen.

360° Virtuell omvisning

Inkludert i prisen

Available for delivery in:

  • Land: Belgia, Danmark, Estland, Finland, Frankrike, Hellas, Irland, Island, Italia, Bulgaria, Kroatia, Kypros, Latvia, Litauen, Luxembourg, Nederland, Norge, Østerrike, Polen, Portugal, Romania, Slovenia, Spania, Storbritannia, Sveits, Sverige, Tyskland, Ungarn, Amerikas forente stater

Kontakt produsenten

Vis produsenten
Aiger House
  • Aiger House

For mer informasjon, vennligst kontakt produsenten ved å fylle ut skjemaet nedenfor

Lignende modeller

The images may be generated using virtual modeling. Actual pricing may differ from the representations shown.

Sammenlign lister

Sammenlign