Översikt
- 1
- 1
- 47.2 m²
Sammanfattning
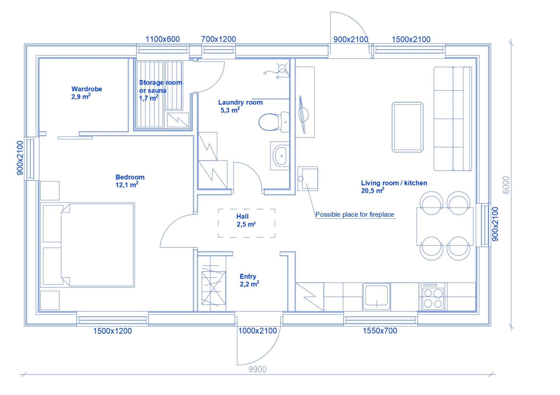
Mai 1-59 är ett modulhus byggt av Akso-Haus, en prefabtillverkare baserad i Estland. Detta modulhus erbjuder 47,2 m² boyta med ett sovrum och ett badrum.
Available for delivery in:
-
Land: Estland, Finland, Lettland, Litauen
Kontakta tillverkaren
Visa tillverkarenLiknande modeller
The images may be generated using virtual modeling. Actual pricing may differ from the representations shown.
- Akso-Haus










