- Från 36,185 € +VAT
Översikt
- 1
- 1
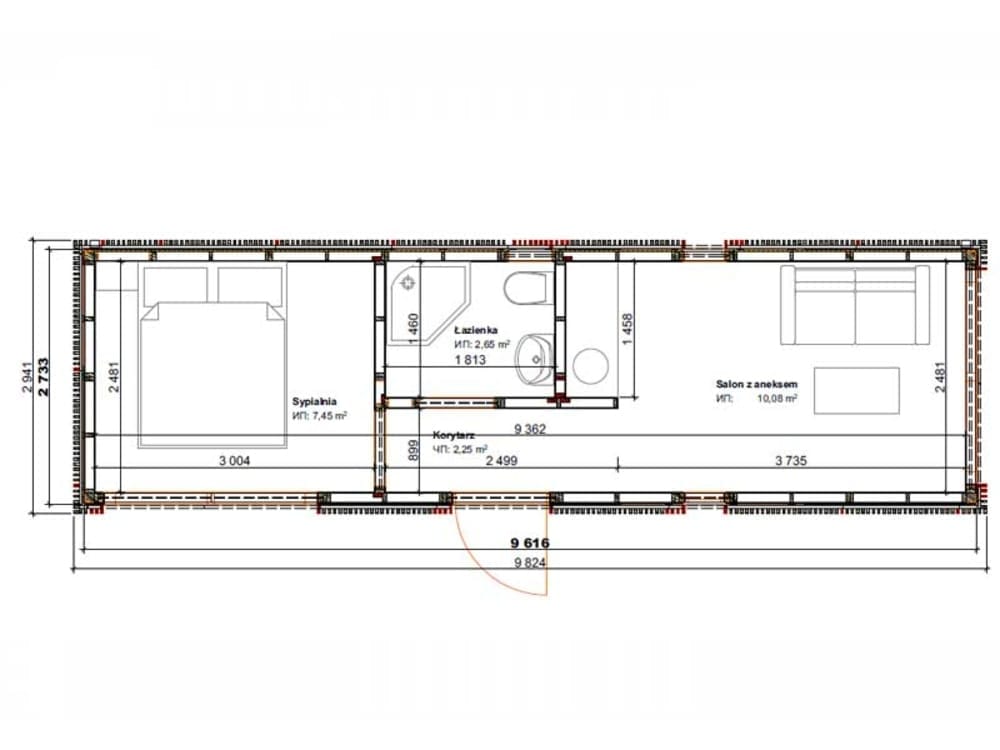
- 22.43 m²
Sammanfattning
Cube28 är ett modulärt prefabricerat hus byggt av DomiHaus, en prefabricerad tillverkare baserad i Polen. Detta prefabricerade hus har en användbar yta på 22,43 m², med 1 sovrum och 1 badrum.
Video
Inkluderat i priset
Available for delivery in:
-
Land: Belgien, Bulgaria, Cypern, Danmark, Estland, Finland, Frankrike, Grekland, Irland, Island, Italien, Kroatien, Lettland, Litauen, Luxemburg, Nederländerna, Norge, Österrike, Polen, Portugal, Rumänien, Schweiz, Slovenien, Spanien, Förenade kungariket, Sverige, Tyskland, Ungern
Kontakta tillverkaren
Visa tillverkarenLiknande modeller
The images may be generated using virtual modeling. Actual pricing may differ from the representations shown.
- Domihaus





