- Från 52,325 € +VAT
Översikt
- 1
- 1
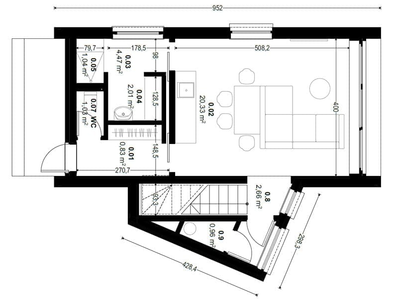
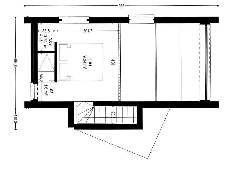
- 48.20 m²
Sammanfattning
DH55 är ett modulärt prefabricerat hus byggt av DomiHaus, en prefabricerad tillverkare baserad i Polen. Detta prefabricerade hus har en användbar yta på 48,20 m² med 1 sovrum och 1 badrum.
Available for delivery in:
-
Land: Belgien, Bulgaria, Cypern, Danmark, Estland, Finland, Frankrike, Grekland, Irland, Island, Italien, Kroatien, Lettland, Litauen, Luxemburg, Nederländerna, Norge, Österrike, Polen, Portugal, Rumänien, Schweiz, Slovenien, Spanien, Förenade kungariket, Sverige, Tyskland, Ungern
Kontakta tillverkaren
Visa tillverkarenLiknande modeller
The images may be generated using virtual modeling. Actual pricing may differ from the representations shown.
- Domihaus











