Tiny Vienna
- POA
Översikt
- 2-4
- 1
- 19 m²
Sammanfattning
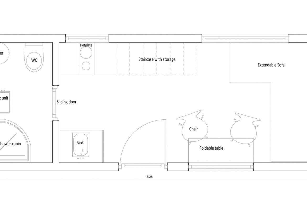
Tiny Vienna är ett litet hus byggt av Eco Tiny House, en tillverkare baserad i Rumänien. Detta Tiny house har en boyta på 19 m² och rymmer upp till fyra personer.
Dokumentation
Brochure - Vienna by Eco Tiny House
Available for delivery in:
-
Land: Förenade kungariket
Kontakta tillverkaren
Visa tillverkarenLiknande modeller
The images may be generated using virtual modeling. Actual pricing may differ from the representations shown.
- Eco Tiny House
















