Översikt

  • 2
  • Sovplatser
  • 1
  • Badrum
  • 28.3 m²
  • Area Size

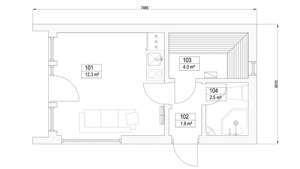
Sammanfattning

Nordic Sauna är en stuga som byggts av IlumHouse, en prefabtillverkare baserad i Lettland. Denna stuga har en boyta på 28,3 m² och rymmer två personer.

Available for delivery in:

  • Land: Belgien, Bulgaria, Cypern, Danmark, Estland, Finland, Frankrike, Grekland, Irland, Island, Italien, Kroatien, Lettland, Litauen, Luxemburg, Nederländerna, Norge, Österrike, Polen, Portugal, Rumänien, Schweiz, Slovenien, Spanien, Förenade kungariket, Sverige, Tyskland, Ungern, Amerikas Förenta Stater

Kontakta tillverkaren

Visa tillverkaren
IlumHouse
  • IlumHouse

För mer information, kontakta tillverkaren genom att fylla i formuläret nedan

Liknande modeller

The images may be generated using virtual modeling. Actual pricing may differ from the representations shown.

Jämför listningar

Jämför