MOMO Cube30
- 65,500 €
Översikt
- 1
- 1
- 30 m²
Sammanfattning
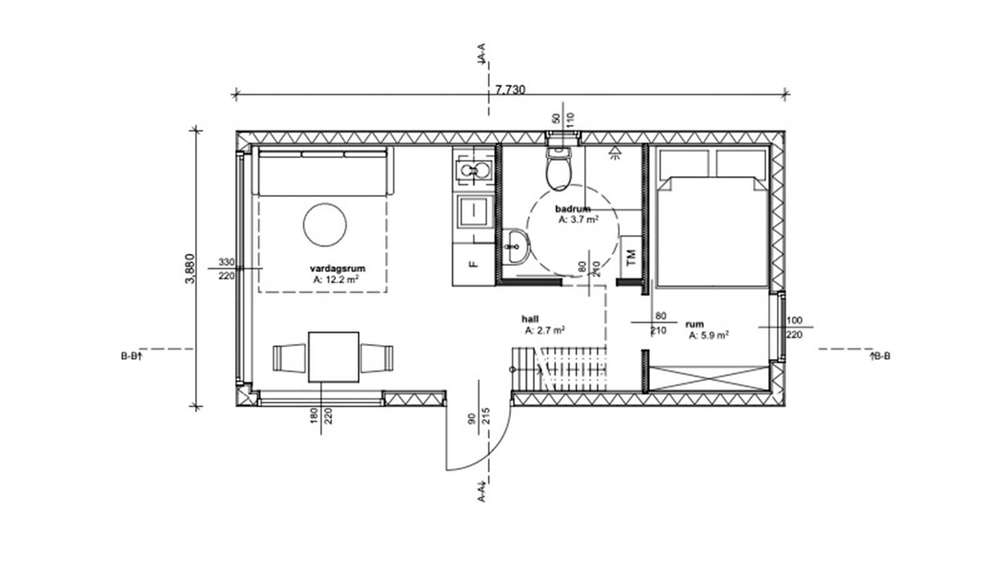
MOMO Cube30 är ett modulhus för åretruntbruk baserat på en stålram som byggts av MOMO Development, en svensk tillverkare av prefabricerade hus. Detta prefabricerade hus har en boyta på 25 m², med 1 sovrum och 1 badrum.
Available for delivery in:
-
Land: Belgien, Bulgaria, Cypern, Danmark, Estland, Finland, Frankrike, Grekland, Irland, Italien, Kroatien, Lettland, Litauen, Luxemburg, Nederländerna, Österrike, Polen, Portugal, Rumänien, Schweiz, Slovenien, Spanien, Förenade kungariket, Sverige, Tyskland, Ungern, Amerikas Förenta Stater
Besök visningshemmet
Kontakta tillverkaren
Visa tillverkarenLiknande modeller
The images may be generated using virtual modeling. Actual pricing may differ from the representations shown.
- MOMO Development



