Den vilda stugan
- 69,500 €
Översikt
- 1
- 1
- 18 m²
Sammanfattning
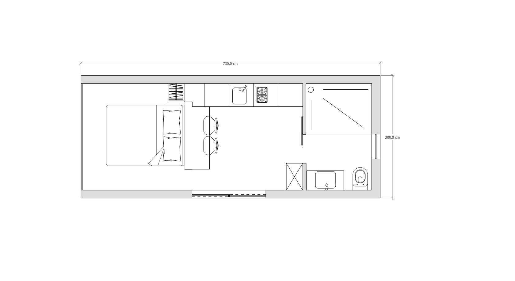
Wild Cabin är en modulär stuga byggd av Wildernest, en tillverkare baserad i Belgien. Stugan har en boyta på 18 m2 och rymmer 2 personer.
Dokumentation
Wildernest-Models-LookBook
Video
Available for delivery in:
-
Land: Belgien, Bulgaria, Cypern, Danmark, Estland, Finland, Frankrike, Grekland, Irland, Island, Italien, Kroatien, Lettland, Litauen, Luxemburg, Nederländerna, Norge, Österrike, Polen, Portugal, Rumänien, Schweiz, Slovenien, Spanien, Förenade kungariket, Sverige, Tyskland, Ungern
Kontakta tillverkaren
Visa tillverkarenLiknande modeller
The images may be generated using virtual modeling. Actual pricing may differ from the representations shown.
- Wildernest





