Características

  • 3+
  • Habitaciones
  • 2+
  • Baños
  • 169 m²
  • Area Size

Resumen

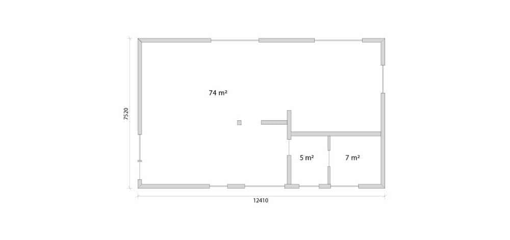
Italia S.F. es una Casa montada in-situ construida por SIA Frame House Group, Fabricante de prefabricados con sede en Letonia. Esta Casa montada in-situ ofrece 169 m² de superficie habitable con 3 dormitorios y 2 baños.

Available for delivery in:

  • País: Alemania, Austria, Bélgica, Bulgaria, Chipre, Croacia, Dinamarca, Eslovenia, España, Estonia, Finlandia, Francia, Grecia, Hungría, Irlanda, Islandia, Italia, Letonia, Lituania, Luxemburgo, Noruega, Países Bajos, Polonia, Portugal, Reino Unido, Rumanía, Suecia, Suiza, Estados Unidos de América

Contactar con el fabricante

Ver fabricante
SIA Frame House Group
  • SIA Frame House Group

Para más información, contactar con el fabricante completando el formulario

Modelos similares

The images may be generated using virtual modeling. Actual pricing may differ from the representations shown.

Comparar listados

Compara