Overview

  • 2
  • Bedrooms
  • 2
  • Bathrooms
  • 79 m²
  • Area Size

Summary

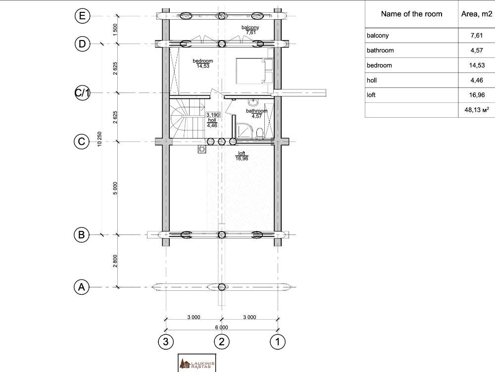
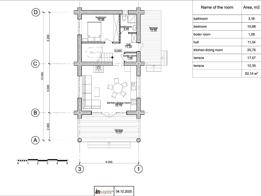
Ruta’s House is a log house built by UAB Zaskov-Grup, a house manufacturer based in Lithuania. This log house provides 79 m² of living space over two floors, with two bedrooms and two bathrooms.

Available for delivery in:

  • Country: Austria, Belgium, Bulgaria, Croatia, Cyprus, Denmark, Estonia, Finland, France, Germany, Greece, Hungary, Iceland, Ireland, Italy, Latvia, Lithuania, Luxembourg, Netherlands, Norway, Poland, Portugal, Romania, Slovenia, Spain, Sweden, Switzerland, United Kingdom, United States of America

Contact the manufacturer

View profile
UAB Zaskov-Grup
  • UAB Zaskov-Grup

For more information, please contact the manufacturer by completing the form below.

Similar models

The images may be generated using virtual modeling. Actual pricing may differ from the representations shown.

Compare listings

Compare