Safari
- POA
Overview
- 2
- 1
- 70 m²
Summary
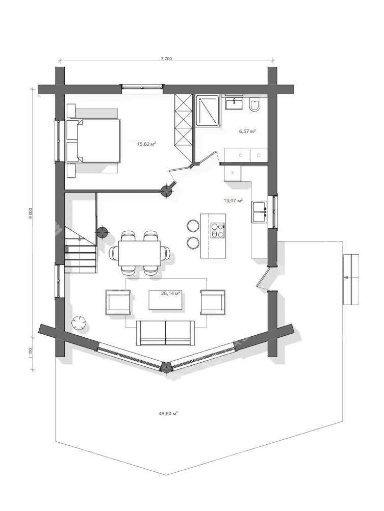
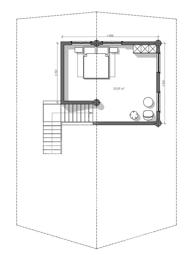
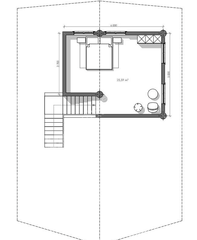
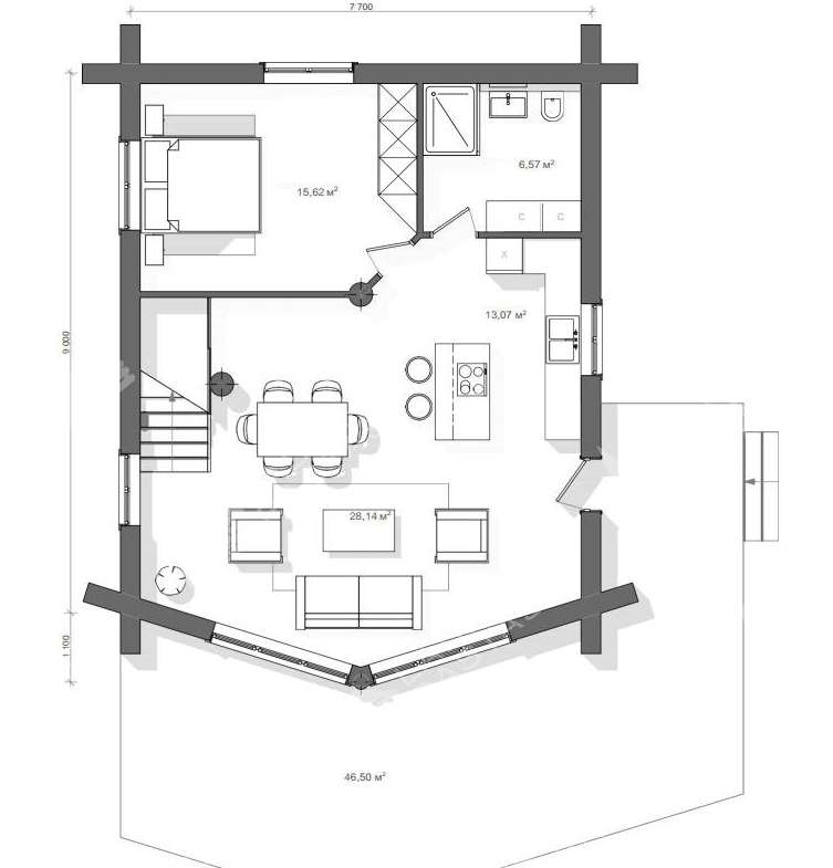
Safari is a log house built by Zaskov-Grup, a house manufacturer based in Lithuania. This log house provides 70 m² of living space over two floors, with two bedrooms and one bathroom.
Available for delivery in:
-
Country: Austria, Belgium, Bulgaria, Croatia, Cyprus, Denmark, Estonia, Finland, France, Germany, Greece, Hungary, Iceland, Ireland, Italy, Latvia, Lithuania, Luxembourg, Netherlands, Norway, Poland, Portugal, Romania, Slovenia, Spain, Sweden, Switzerland, United Kingdom, United States of America
Contact the manufacturer
View profile
The images may be generated using virtual modeling. Actual pricing may differ from the representations shown.
- UAB Zaskov-Grup

